5 Basement Layouts That Maximize Your Space
Your basement layout can make or break the functionality and value of your finished space. Whether you're creating a rental suite, family entertainment area, or home office, these proven layouts help you maximize every square foot.
Before You Plan: Key Considerations
Ceiling Height Requirements
Minimum ceiling heights (Canadian building code):
- Habitable rooms: 6'5" (1.95m)
- Basement bedrooms: 6'11" (2.1m) recommended
- Bathrooms and hallways: 6'3" (1.9m)
💡 Pro Tip: Measure floor-to-joist height, not floor-to-ductwork. HVAC ducts often limit usable ceiling height.
Egress Requirements
For legal bedrooms, you must have:
- Window minimum size: 3.8 sq ft (0.35m²)
- Minimum opening: 15" wide × 24" high
- Maximum sill height: 44" from floor
- Opens directly to exterior
Natural Light
Building codes require:
- Minimum window area: 5% of floor area
- Or artificial lighting: 10% of floor area
Layout 1: The Legal Suite

Best For: Rental income or multi-generational living
Minimum Size: 600-800 sq ft
Key Features:
- Separate entrance (required in most municipalities)
- Full kitchen with stove, fridge, sink
- 3-piece bathroom
- 1-2 bedrooms with egress windows
- Living/dining area
- Laundry hookups
Space Allocation:
- Kitchen: 80-120 sq ft
- Bathroom: 35-50 sq ft
- Bedroom(s): 100-150 sq ft each
- Living area: 200-300 sq ft
- Hallway/storage: 85-100 sq ft
Cost Range: $45,000 - $85,000
ROI Potential:
- Rental income: $1,200-$2,000/month
- Property value increase: $50,000-$100,000
Layout 2: The Entertainment Hub

Best For: Families who love to host
Minimum Size: 500-700 sq ft
Key Features:
- Large open concept area
- Bar with sink
- Home theater zone
- Game area (pool table, darts, etc.)
- Half or 3-piece bathroom
- Minimal bedroom count
Space Allocation:
- Main entertainment area: 350-450 sq ft
- Bar area: 50-80 sq ft
- Bathroom: 25-40 sq ft
- Storage: 75-100 sq ft
Cost Range: $35,000 - $60,000
Best Design Elements:
- Low-profile pot lights for theater ambiance
- Luxury vinyl plank (LVP) flooring (spill-resistant)
- Mini-split HVAC for temperature control
- Sound-dampening insulation in ceiling
- Dimmable lighting zones
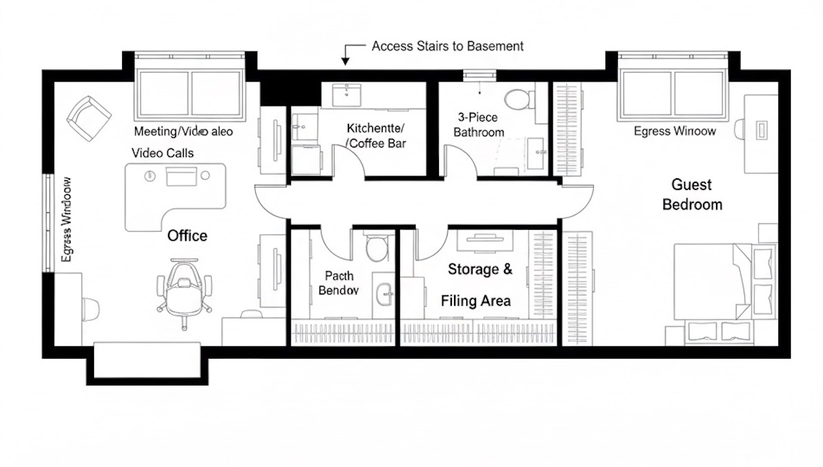
Layout 3: The Home Office Suite

Best For: Remote workers and entrepreneurs
Minimum Size: 400-600 sq ft
Key Features:
- Dedicated office with natural light
- Meeting/video call area
- Bathroom
- Kitchenette or coffee bar
- Storage/filing area
- Guest bedroom option
Space Allocation:
- Main office: 150-200 sq ft
- Meeting area: 100-150 sq ft
- Bathroom: 30-40 sq ft
- Kitchenette: 40-60 sq ft
- Storage: 80-100 sq ft
Cost Range: $30,000 - $55,000
Design Priorities:
- Excellent lighting (natural + task lighting)
- Multiple outlets and data ports
- Quiet HVAC system
- Professional finishes
- Acoustic insulation
Layout 4: The Multi-Gen Suite

Best For: Aging parents or adult children
Minimum Size: 500-700 sq ft
Key Features:
- Bedroom with egress
- Accessible bathroom (walk-in shower)
- Kitchenette
- Living area
- Separate entrance (optional but valuable)
- Laundry access
Space Allocation:
- Bedroom: 120-150 sq ft
- Living area: 150-200 sq ft
- Accessible bathroom: 50-70 sq ft
- Kitchenette: 60-80 sq ft
- Storage/laundry: 70-100 sq ft
Cost Range: $40,000 - $70,000
Accessibility Features:
- Zero-threshold shower
- Grab bars (reinforce walls during framing)
- Wider doorways (36" minimum)
- Lever handles (not knobs)
- Non-slip flooring
- Good lighting throughout
Layout 5: The Flex Space

Best For: Families with changing needs
Minimum Size: 600-900 sq ft
Key Features:
- Open concept main area
- 1 bedroom (can be office/gym)
- Bathroom
- Wet bar or kitchenette
- Multiple zones without walls
- Movable partitions option
Space Allocation:
- Open flex area: 300-400 sq ft
- Bedroom/office: 120-150 sq ft
- Bathroom: 35-50 sq ft
- Wet bar: 40-60 sq ft
- Storage: 105-140 sq ft
Cost Range: $35,000 - $65,000
Versatility Features:
- Barn doors or pocket doors (save space)
- Murphy bed option
- Modular furniture
- Multiple outlets everywhere
- Flexible lighting zones
- Neutral color palette
Space-Maximizing Tips for Any Layout
1. Use Every Inch
- Built-in storage under stairs
- Floor-to-ceiling shelving
- Recessed medicine cabinets
- Pocket doors (save 10 sq ft per door)
2. Create Visual Space
- Light colors make rooms feel larger
- Mirrors reflect light and add depth
- Minimal window treatments
- Consistent flooring throughout
3. Plan for Mechanicals
Reserve space for:
- HVAC equipment: 30-60 sq ft
- Water heater: 10-15 sq ft
- Electrical panel: 3-6 sq ft
- Storage: 50-100 sq ft minimum
4. Think Vertical
- 8' ceilings feel more spacious than 7'
- Tall cabinets maximize storage
- Loft areas for extra space
- Raised platforms for definition
Common Layout Mistakes
1. Forgetting Code Requirements
- Result: Costly modifications during inspection
- Solution: Research codes before finalizing layout
2. Undersizing Bathrooms
- Result: Cramped, unusable space
- Solution: Minimum 5'×8' for 3-piece bathroom
3. Poor Traffic Flow
- Result: Wasted hallway space
- Solution: Plan main paths first, rooms second
4. Ignoring Mechanical Systems
- Result: Lost ceiling height, boxed soffits
- Solution: Map mechanicals before framing
5. Inadequate Storage
- Result: Cluttered, cramped feeling
- Solution: 10% of total area for storage
Ready to Plan Your Basement?
Get a detailed cost estimate for your specific basement layout. Our calculator accounts for all the features and finishes you're considering.
Get Your Free Basement Estimate
Last updated: January 2025. Layout recommendations based on Canadian building codes and best practices.
RenoEstimate Team
Renovation Cost Experts
The RenoEstimate team provides accurate, data-driven renovation cost guides to help Canadian homeowners plan and budget their projects with confidence.
Get Your Free Estimate
Ready to start your renovation? Get a detailed cost breakdown in minutes.
Calculate Your Project Cost